产品展示
产品分类

快速反冲除污器
概述
快速反冲除污器根据流体动力学原理,采用了最为合理的结构形式使之运行阻力很小。安装于管路系统中无需设置旁路,可在系统不停机的情况下随时反冲排污确保系统的正常运行。在同类产品中占有更多的优势,在市场上倍受青睐,根据使用情况分为直通式和角通式。
2工作原理

快速反冲除污器根据流体动力学原理,采用了最为合理的结构形式使之运行阻力很小。快速反冲除污器安装于管路系统中无需设置旁路,可在系统不停机的情况下随时反冲排污确保系统的正常运行。在同类产品中占有更多的优势,在市场上倍受青睐。 根据使用情况分为直通式和角通式。
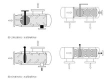
除污器工作时,碟阀阀板处与全开状态介质由进口法兰a进入滤网内侧,经网眼过滤后进入滤网外侧,由出口法兰b离开除污器进入管路系统。
除污器排污时,碟阀阀板处于关闭状态,排污管外阀门打开,由于除污器内介质与排污管外产生压差,介质流向改变,由滤网外侧流向内侧,起反冲作用将杂质和污物排出。排污过程中,大部分介质仍由出口法兰b进入管路系统,系统不停机。
3性能参数
●设计压力:1.6Mpa 设计温度:200℃
●滤网孔径:直径1- 10 法兰标准:JB/T81-94<。< span="">
4安装与使用
1、安装简单,只需按照设备筒体上箭头指示进水方向连接在管路上;
2、设计、安装时应尽量考虑排污口在下部,便于杂物的顺利排放;
3、排污管就近接入排水沟,且应保持排污顺畅;
4、为便于观察系统工况和日常操作,应在进、出口安装压力表和手动阀门;
5、排污时,应根据排污情况,通过开关阀门,对滤网冲洗10-20秒;
6、微电脑控制器的使用方法:
(1)出水压力值设定方法:系统运行后,观察设备进水压力值,然后将出水电接点压力表的数值调整为小于进水压力值0.06-0.08MPa。如:进水压力为0.4MPa,则出水电接点压力表的数值调整为0.32-0.34 MPa之间即可。
(2)然后接通微电脑电源,并将控制面板上的电源开关打开。
(3)如果此时出水压力低于设定压力值,则设备保持在工作状态,工作指示灯亮,自动执行器开启阀板,排污电磁阀(或电动阀)关闭。
(4)如果出水压力低于设定压力值,则设备进入反冲洗状态,反洗指示灯亮,自动执行器关闭阀板,排污电磁阀(或电动阀)打开。反洗过程延时2-4分钟后,返回工作状态。如果此时出水压力高于设定压力值,则设备保持正常出水状态;如果出水压力仍旧低于设定压力值,则设备工作2-4分钟,反洗2-4分钟,如此不断反复,直到出水压力值高于设定压力值。
(5)反冲洗执行闸板轴与设备筒体为双橡胶圈密封(或四氟填料),若使用过程中发生漏水的现象,可用小扳手将压盖上面的三个螺丝适当均匀的拧紧几圈,以不漏水为准。若压盖被压紧到底部仍不能解决漏水现象,则需要更换新的密封圈或填料(密封圈规格型号以随机备用型号为准)。


